Kurumsal
Hakkımızda
Misyonumuz
Vizyonumuz
Mimari Uygulamalar
Resim Galeri
Video Galeri
Konut Projeleri
Tamamlanan Projeler
Kataloglar
Blog
İletişim
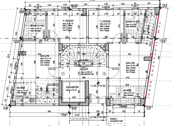
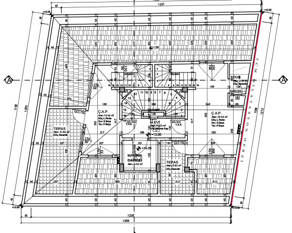
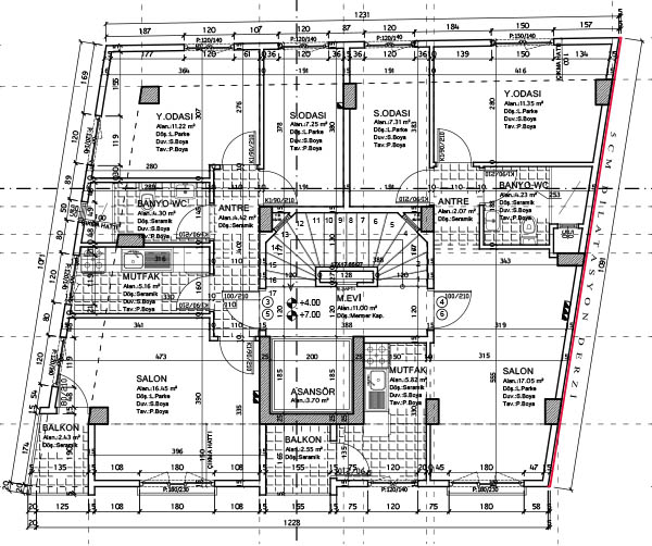
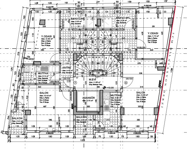
Sancaktepe Modern Apart
Ana Sayfa
Completed Projects
Sancaktepe Modern Apart
Sancaktepe Modern Apart